1 / 32 foto

Gallio Hinterbegh - Bicamere con doppio terrazzo T3280
In Vendita

€ 268.000

€ 3.526 / mq

  • 3 Locali
  • 2 Camere
  • 1 Bagni
  • 76,00 mq
  • Giardino
Descrizione
Nel cuore dell’Altopiano, dove la tranquillità incontra la bellezza della natura.
A Gallio, in località Hinterbegh, proponiamo un accogliente appartamento ideale per chi cerca relax e comfort a pochi minuti sia dal centro di Gallio che da Asiago.
Inserito in un contesto riservato e silenzioso, l’immobile si distingue per il suo ingresso indipendente e per lo scoperto esclusivo: uno spazio perfetto per godersi l’aria di montagna in ogni stagione.
All’interno, la zona giorno open space accoglie con un caldo caminetto, creando un’atmosfera intima e rilassante. Gli arredi, realizzati su misura in legno e praticamente nuovi, valorizzano ogni ambiente con eleganza e funzionalità.
L’abitazione è dotata, inoltre, di due camere, un bagno con doccia; al piano interrato completano la proprietà un comodo posto auto coperto e un pratico magazzino. Gli spazi sono ben organizzati e pronti da vivere.
Costruito nel 2005, l’appartamento rappresenta una soluzione ideale sia come casa vacanze che come investimento.
Un piccolo rifugio dove il tempo rallenta e ogni dettaglio profuma di casa.
Dettagli Immobile
  • Rif.: 1985
  • Tipologia: Appartamento
  • Contratto: In Vendita
  • Prezzo: € 268.000
  • Locali: 3
  • Camere: 2
  • Bagni: 1
  • Superficie: 76,00 mq
  • Piano: 0
  • Piani stabile: 1
  • Anno costruzione: 2005
  • Stato interno: Ottimo Stato
  • Riscaldamento: Autonomo Metano
  • Arredamento: Arredato
  • Classe energetica: E
  • IPE: 0,00 kWh/mqa
Dotazioni
  • Terrazzo
  • Posto Auto
  • Giardino Condominiale
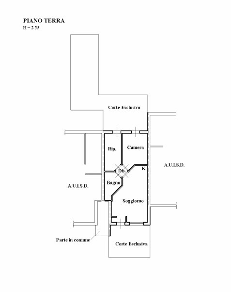
Composizione
  • Bagno (Piano 1)
  • Camera (Piano 1)
  • Camera da letto matrimoniale (Piano 1)
  • Cantina (Piano 1)
  • Cucinotto (Piano 1)
  • Giardino (Piano 1)
  • Ingresso (Piano 1)
  • Ingresso indipendente (Piano 1)
  • Open space (Piano 1)
  • Posto auto (Piano 1)
  • Ripostiglio (Piano 1)
  • Soggiorno (Piano 1)
  • Terrazzo (Piano 1)
  • Terrazzo (Piano 1)
Planimetria
Video
Posizione