1 / 39 foto

Rotzo - Villa singola con giardino T619
In Vendita

€ 380.000

€ 1.407 / mq

  • 6 Locali
  • 3 Camere
  • 2 Bagni
  • 270,00 mq
  • Box Auto
  • Giardino
Descrizione
Villa singola in vendita a Rotzo
Proponiamo in vendita una villa singola situata in posizione tranquilla e soleggiata a Rotzo, immersa nel verde e caratterizzata da ampi spazi interni ed esterni. L’immobile, edificato negli anni ’80, si presenta in ottime condizioni di manutenzione.
La villa si sviluppa su due piani fuori terra, oltre al piano sottotetto.
Al piano terra troviamo i locali tecnici, una comoda lavanderia e un box auto doppio, oltre al collegamento interno con il piano superiore.
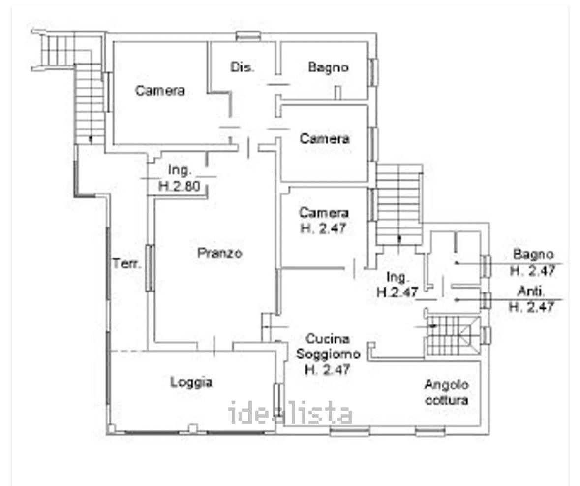
Il piano primo, accessibile tramite due ingressi indipendenti oltre alla scala interna, accoglie ambienti dalle metrature generose: un primo spazio adibito a zona pranzo con ampia cucina e un primo soggiorno impreziosito da stufa a pellet, servito da un bagno finestrato con doccia. Proseguendo, troviamo un grande salone con caminetto a legna, dal quale si accede a un ampio terrazzo, anch’esso dotato di caminetto a legna.
La zona notte è composta da tre camere da letto, di cui due ampie matrimoniali e una cameretta, oltre a un secondo bagno finestrato con vasca.
Al piano sottotetto è presente una spaziosa soffitta ad uso deposito.
Esternamente la proprietà è circondata da un ampio giardino privato, con ulteriore spazio per il parcheggio di più autovetture.
Il riscaldamento è termoautonomo a metano.
Soluzione ideale per chi cerca una villa indipendente, ben esposta, con ampi spazi e in un contesto residenziale tranquillo.
Dettagli Immobile
  • Rif.: 1933
  • Tipologia: Villa
  • Sottotipologia: Villa Singola
  • Contratto: In Vendita
  • Prezzo: € 380.000
  • Locali: 6
  • Camere: 3
  • Bagni: 2
  • Superficie: 270,00 mq
  • Piano: 0
  • Piani stabile: 2
  • Anno costruzione: 1980
  • Stato interno: Buono
  • Riscaldamento: Autonomo Metano
  • Arredamento: Arredato
  • Classe energetica: F
  • IPE: 0,00 kWh/mqa
Dotazioni
  • Terrazzo
  • Box Posto auto scoperto
  • Posto Auto
  • Giardino Privato
Composizione
  • Bagno (Piano 1)
  • Bagno (Piano 1)
  • Box (Piano 1)
  • Camera (Piano 1)
  • Camera da letto matrimoniale (Piano 1)
  • Camera da letto matrimoniale (Piano 1)
  • Cantina (Piano 1)
  • Cantina (Piano 1)
  • Cucina Semiabitabile (Piano 1)
  • Giardino (Piano 1)
  • Ingresso (Piano 1)
  • Ingresso indipendente (Piano 1)
  • Lavanderia (Piano 1)
  • Locale (Piano 1)
  • Open space (Piano 1)
  • Posto auto (Piano 1)
  • Ripostiglio (Piano 1)
  • Salone (Piano 1)
  • Salone Doppio (Piano 1)
  • Soggiorno (Piano 1)
  • Soppalco (Piano 1)
  • Stanza (Piano 1)
  • Stufa (Piano 1)
  • Terrazzo (Piano 1)
Planimetria
Posizione